Tegnestue – tegninger til byggetilladelse og byggeri
Vi guider dig fra idé til godkendt byggetilladelse
Hos Balneo Byg ApS på Amager finder du en professionel bygherrerådgiver. Her laver vi de tegninger, der danner grundlaget for dit byggeprojekt. Uklare eller mangelfulde tegninger kan føre til afslag fra kommunen, misforståelser hos håndværkere eller dyre fejl undervejs.
Som din professionelle tegnestue leverer gennemarbejdet og præcist tegningsmateriale, som både kommunen og håndværkerne kan stole på – så dit projekt kommer trygt og effektivt fra start. Book en gratis konsultation – og få styr på dine tegninger fra starten. Vi hjælper dig uanset om du bor i Hvidovre, i København eller omegn.
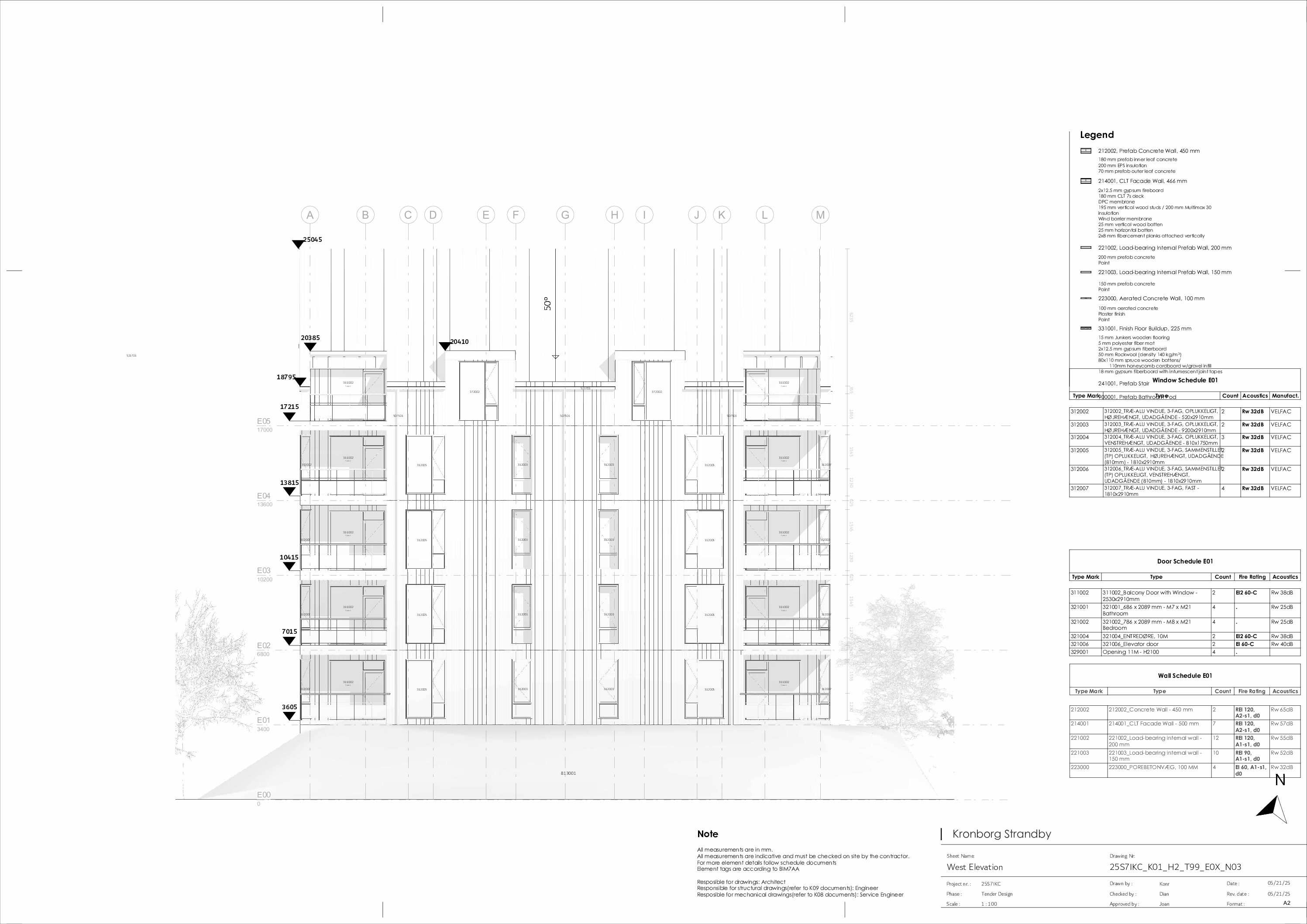
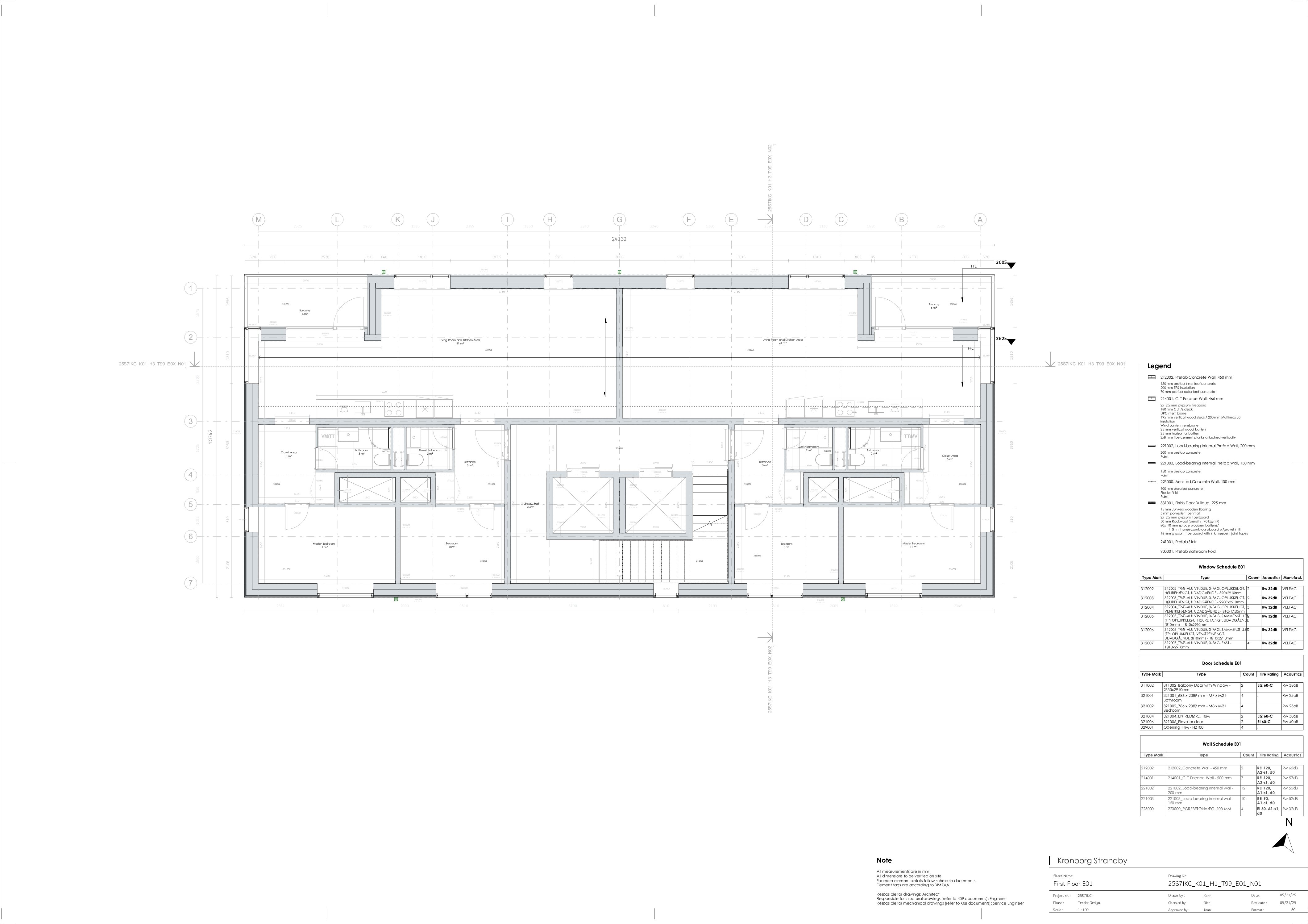
Case: Kronborg Strandby – Et fuldt udviklet projekt
I Kronborg Strandby har vi udarbejdet et komplet tegningsmateriale til et større boligprojekt. Vores arbejde omfattede situationsplan, plantegninger, snit og facader samt detaljer og konstruktionstegninger i samarbejde med ingeniør.
Materialet blev godkendt hos kommunen og fungerede som sikkert grundlag for håndværkerne på byggepladsen – uden misforståelser eller ekstraomkostninger. Gode tegninger giver ikke bare hurtigere godkendelser – de skaber også en smidig byggeproces.
Vores projektfaser
Vi arbejder struktureret og kan levere hele pakken – eller præcis den fase, du har brug for lige fra byggetilladelse til færdigmelding:
- Skitseprojekt – De første idéer og muligheder. Vi laver plantegninger og simple visualiseringer, så du kan se projektet og træffe beslutninger om retningen.
- Myndighedsprojekt – Materialet til byggetilladelsen: situationsplan, plantegninger, snit og facader i kommunens format.
- Hovedprojekt – Detaljerede tegninger og tekniske beregninger i samarbejde med ingeniør, så entreprenører kan give præcise tilbud.
- Udbud – Vi hjælper med at indhente og sammenligne tilbud fra entreprenører på baggrund af hovedprojektet.
- Udførelse – Tegninger, som håndværkere kan bygge direkte efter – uden tvivlsspørgsmål.
- Færdigmelding – Afsluttende dokumentation til kommunen, når arbejdet er udført.
Din garanti for overblik
Vi styrer projektet sikkert gennem alle faser – så du altid har ro i maven.
vildig og loyal rådgivning
Vi arbejder udelukkende for dig – dine mål og interesser er vores højeste prioritet.
Erfaring fra små og store projekter
Vi trækker på bred erfaring fra både nybyggeri, renovering og komplekse byggerier.
Hvilke tegninger leverer vi?
Vores tegnestue leverer alt det materiale, der skal til for at gøre dit byggeri klart til udførelse. Vi sørger for både de tekniske tegninger og de visuelle præsentationer, så du får et komplet overblik over dit projekt – fra første skitse til færdigt byggeri.
- Myndighedstegninger – situationsplan, plantegninger, snit og facader
- Byggetegninger – detaljer og konstruktionstegninger (i samarbejde med ingeniør)
- Visualiseringer – fotorealistiske 3D-renders, som giver dig fuldt overblik
Hvorfor vælge Balneo Byg ApS?
Som tegnestue sørger vi for, at dit projekt bliver gennemtænkt ned til mindste detalje. Vi kombinerer teknisk præcision med praktisk forståelse, så du får et solidt grundlag for både byggetilladelse og selve byggeriet.
- Kommunegodkendt kvalitet – vi leverer i det format og den standard, kommunen kræver
- Håndværkervenlige tegninger – klare og præcise, så håndværkerne kan bygge korrekt første gang
- Skræddersyede løsninger – tilpasset din bolig, din stil og dine behov
- Én samlet partner – vi kombinerer arkitektfaglighed, tekniske tegninger og visualiseringer ét sted
Hvad siger vores kunder?
“Tegningerne til Kronborg Strandby blev godkendt uden bemærkninger, og håndværkerne havde et sikkert grundlag at arbejde ud fra.” – Kunde i Kronborg Strandby
Ofte stillede spørgsmål om tegninger
Hvor lang tid tager det at få lavet tegninger?
Det afhænger af projektets størrelse. Enkle plantegninger kan ofte være klar på 1–2 uger, mens større projekter kræver længere tid. Vi giver altid en realistisk tidsplan fra starten.
Hvad koster det at få lavet tegninger?
Prisen afhænger af projektets omfang og hvilke typer tegninger, du har brug for (f.eks. skitseprojekt, myndighedsprojekt eller hovedprojekt). Vi giver altid et skræddersyet tilbud efter en gratis konsultation.
Kan jeg nøjes med tegninger til byggetilladelsen?
Ja. Mange kunder vælger kun et myndighedsprojekt. Men hvis du også vil have tilbud fra entreprenører eller sikre færre fejl på byggepladsen, anbefaler vi et hovedprojekt.
Skal jeg også have 3D-visualiseringer?
Det er ikke et krav, men 3D-visualiseringer gør det nemmere at forstå og beslutte materialer og løsninger. Mange af vores kunder oplever, at det giver større tryghed og hurtigere beslutninger.
Sender I tegningerne til kommunen?
Hvis vi også står for byggetilladelsen, tager vi os af hele ansøgningen og dialogen med kommunen. Hvis du kun har brug for tegninger, får du materialet klar til selv at indsende.
Leder du efter en professionel tegnestue? Kontakt os i dag
Hos Balneo Byg ApS får du ikke bare tegninger, men et gennemarbejdet materiale, der skaber klarhed og tryghed i hele processen – fra idé til færdigmelding.
Book en gratis konsultation nu – og lad os gennemgå dit projekt sammen. Ring til os på (+45) 91 80 72 42 eller skriv en e-mail til contact@balneobyg.dk.